Tables and Chairs Applications
Application Details for Case Reference: TBLCH/23/333208/03
go to: Property Details | Proposal Details | Table and Chairs Contact | Committee Details | Lodge Representations | View the plan | |
Property Details | |
---|---|
Case Reference Number: | TBLCH/23/333208/03 |
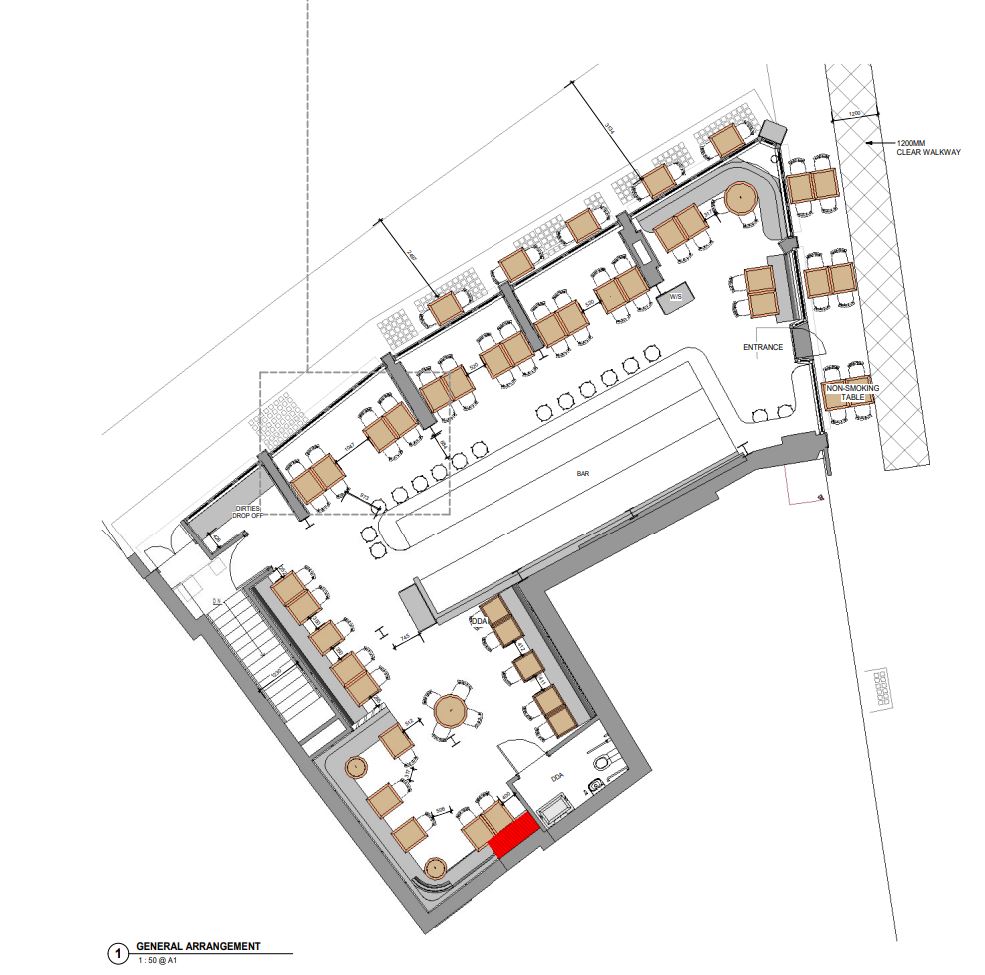
Trading Name and Address: | Lina Stores 15-17 Exhibition Road, LONDON, SW7 2HE |
Ward: | Brompton and Hans Town |
Conservation Area: | Thurloe and Smith's Charity |
Proposal Details | |
Licence Type: | Tables and Chairs |
Application Details: | Placement of six tables and 12 chairs on the Exhibition Road frontage and five tables and 10 chairs on the Thurloe Place frontage between the hours of 8am and 10pm on Mondays to Sundays |
Proposed furniture plan: | View the plan |
Application Received Date: | 03/10/2025 |
Last date for objections/representations: | 17/10/2025 |
Tables and Chairs Contact Details | |
Table and Chairs Telephone Number: | 020 7361 2688 |
Tables and Chairs Email Address: | [email protected] |
Committee Details | |
Committee Date: | |
Lodge Representations | |
Lodge Representations: | If you wish to make representations regarding this application you can submit your representations on line by completing the Submit Representations Form or alternatively you can send them to Transport and Highways, Room 114, Council Offices, 37 Pembroke Road, London W8 6PW |